很遗憾,因您的浏览器版本过低导致无法获得最佳浏览体验,推荐下载安装谷歌浏览器!
苏州燕南飞建筑装饰工程有限公司
服务热线:
17715598856
首页
案例展示
关于我们
新闻资讯
联系我们
加入我们
首页
案例展示
关于我们
新闻资讯
联系我们
加入我们
您当前的位置:
首页
>
案例展示
>
企业办公 - 更多
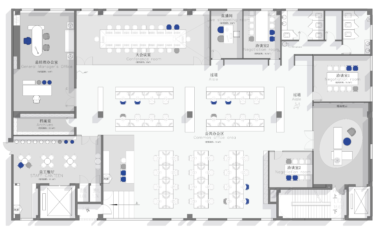
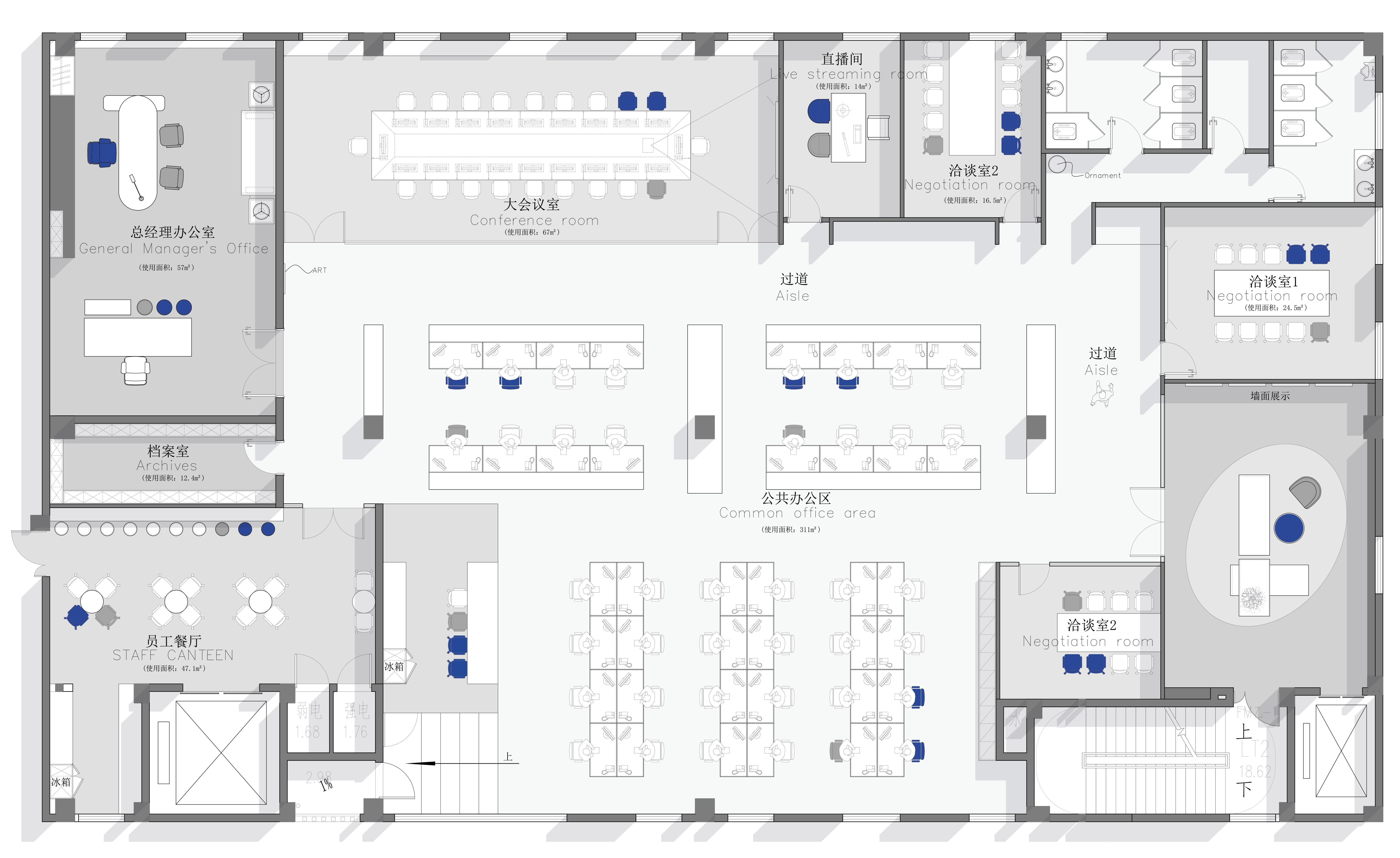
张家港坐标系电子科技有限公司
价格:
价格面议
更多信息
分享:
请选择产品规格
关闭
提示信息
上一条:
徐州亿威航电
下一条:
纳米城办公室
关键词:
办公室
厂房
设计
装修
产品介绍
猜你喜欢
苏州金地广场网鱼网咖
吴江天虹澜月谷足浴店
蚕食科技办公室设计
苏州拉昆塔温德姆酒店
更多>>
相关推荐
虏伯曼太仓厂房
常熟卓经创投办公室展厅
蚕食科技办公室设计
南通富通大楼
案例展示
酒店整装 - 更多
企业办公 - 更多
教育培训 - 更多
休闲娱乐 - 更多
餐饮店铺 - 更多
品牌策划 - 更多
公司动态
更多>>
苏州工装装修 | 消防二级资质,一口价零增项,15 天极速交付
如何做好餐饮品牌全案设计
有格调的门头设计是店铺经营的制胜法宝
新时代餐饮空间设计的竞争力
西式餐厅设计注意事项
友情链接:
苏州环氧地坪
激光切割机
苏州实验室装修
电话咨询
短信咨询
留言咨询
查看地图